Sold STC
Sold STC
Sold STC
Sold STC
Sold STC
Sold STC
Sold STC
Sold STC
Sold STC

Back Lane

Whittingham, Preston, Lancashire, PR3 2FH
0
0
Offers Over £300,000
No video tour found for this property
Floorplans
View On Map
Video Tour
No video tour found for this property

Description

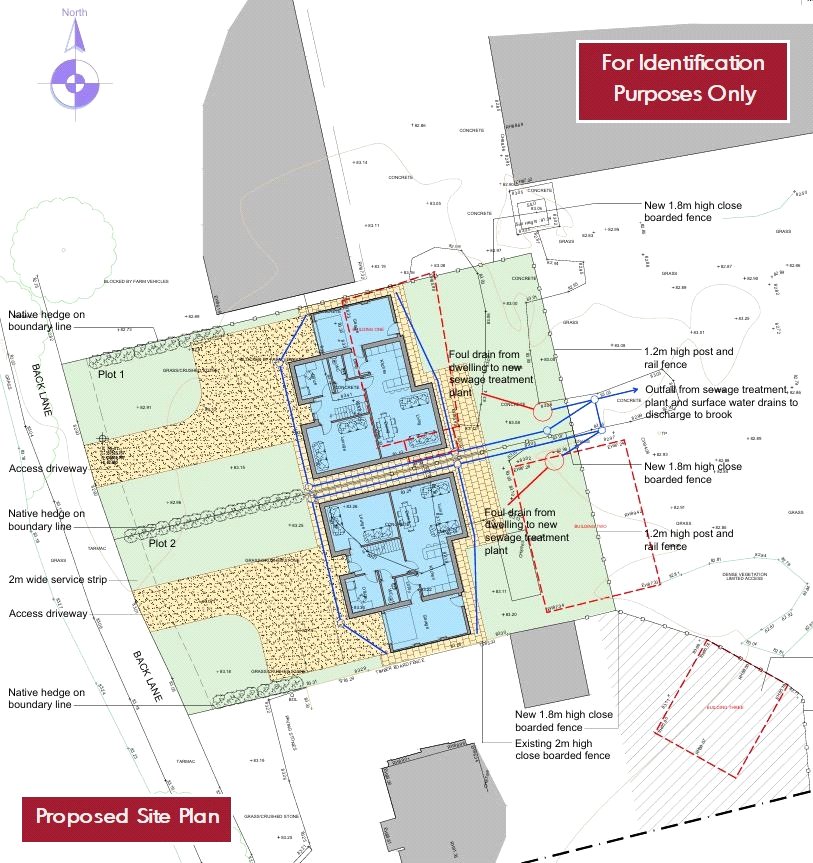
A superb development opportunity situated in the rural village of Whittingham, Preston. This property benefits from full planning permission for the erection of two dwellings following demolition of the existing barns and garage which is now complete. Planning permission was granted on 29th November 2022 by Preston City Council, under reference 06/2022/1202.

According to the planning permission, each plot comprises a detached dwelling with a single garage. The properties include a kitchen diner, living room, study, utility room and WC to the ground floor, and four bedrooms, two with en-suite and a family bathroom to the first floor.

The property is situated in a peaceful, rural setting down Back Lane, with roadside frontage and views of the open countryside to the front and rear.

The properties excellent location off Cumeragh Lane provides access into Whittingham village and the market town of Longridge which consist of a range of local amenities including shops, pubs, restaurants, primary and secondary schools. The property is also a short drive from Junction 32 of the M6 Motorway and M55 Motorway.

Read More