Brookhouse Road

Brookhouse, Lancaster, Lancashire, LA2 9NW
0
0
Asking Price £600,000
No video tour found for this property
Floorplans
View On Map
Video Tour
No video tour found for this property

Description

A truly rare opportunity to acquire three prime new build plots in the highly sought-after location - where opportunities like this are virtually never available. Set in a peaceful and established setting, these plots offer the chance to create bespoke homes in one of the area's most desirable communities. With generous plot sizes and excellent accessibility, this is an ideal opportunity for self-builders or developers seeking quality and exclusivity in a first-class location.

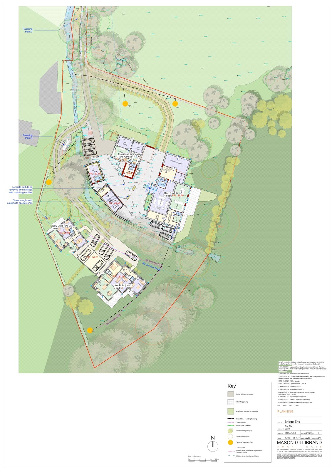
Bridge End Farm offers developers a rare opportunity to acquire a premium rural development site in the heart of the picturesque Lune Valley village of Brookhouse. The highly sought after Lune Valley setting is ideal for a range of markets from those looking for an exclusive family home to those who want to be within walking distance of all amenities.

This prestigious project is ideal for developers looking to create high-end eye-catching homes and an exceptional new build opportunity, making the site extremely attractive for a range of interests. Set back from the road along a tree lined, riverside driveway the approach is exclusive.

The new build development is located at the north and south of the site and comprises three new build dwellings. All of the dwellings will attract high end values, given their privacy and setting. This unique project allows for a blend of heritage and architectural vision and is truly a rare opportunity.

One plot offers a detached dwelling extending to 248 sq metres. with an entrance hall with WC facilities off, sitting room, separate living room, open plan kitchen / dining space with utility area off and ground floor bedroom (being bedroom 5), together with ensuite facilities. The first floor comprises four bedrooms, one being a principal bedroom suite with dressing room and ensuite facilities, with a further ensuite bedroom to the first floor. The remaining two bedrooms share the house bathroom.

A second plot offers 153 sq metres of accommodation, comprises entrance hallway, utility area off, open kitchen and living space, separate dining area and separate living room, study and WC facilities to the ground floor. The first floor provides three bedrooms, one being ensuite, and a house bathroom together with linen storage.

Outside the plot keeps on giving with a substantial garden plot offering privacy and serenity and a wooded backdrop. Perfect for the eco-minded due to the plot’s bio diversity and resident wildlife habitat. Additional land is available by separate negotiation for those looking for an enhanced wellbeing and balanced lifestyle. The properties also have the benefit of garaging facilities which is also approved with the planning consent.

A third plot is set at the approach to the site and offers a single-level new build opportunity, set within the exclusive Bridge End development offers a rare chance to create a bespoke countryside home, nestled in the scenic Lune Valley.

With full planning permission secured for a 148 sq m dwelling, thoughtfully designed to combine modern living with a peaceful, rural setting. Set back in a private position near a tree-lined entrance driveway, the home offers both the best of both worlds with convenience and ease of access and is a truly unique setting and opportunity.

The approved design includes accommodation over a single level with an inviting entrance hall, WC, spacious open-plan kitchen/living/dining area, utility room, three well-proportioned bedrooms (including a principle ensuite), and a family bathroom.

Generous garden space adds to the appeal, with the further option to purchase additional adjoining land for even greater flexibility—ideal for those wishing to further enhance their lifestyle and welling. This exceptional opportunity to build not one, but three new homes is a rare opportunity, in a truly desirable countryside location is a true gem.

Read More