Chapel Lane

Hoghton, Preston, PR5 0RY
0
0
Offers in the region of £400,000
No video tour found for this property
Floorplans
View On Map
Video Tour
No video tour found for this property

Description

* DEVELOPMENT W PLANNING - 3 DWELLINGS * Barracks Farm benefits from Full Planning Consent for a residential development comprising the erection of three new dwellings following the demolition of an existing derelict building. The development site is located within the attractive South Lancashire Village of Hoghton, positioned just to the south east of Preston.

The site enjoys a very accessible rural village situation, being approximately 5 miles from Preston City Centre and 6 miles from Blackburn. The site is also ideally located for commuting via the major road networks, with junction 3 of the M65 being approximately 2.5 miles, junction 31 on the M6 being 3 miles and junction 9 of the M61 being 5 miles.

Hoghton benefits from being within a cluster of villages, including Coupe Green and Gregson Lane, with the area benefitting from independent shops, fuel garages, public houses and primary schools.

This village location and accessibility will result in the finished dwellings being highly desirable to a wide audience base, including the family and commuter market.

The development site currently comprises a former yard and derelict buildings, with the site extending to approx. 0.36 acres (0.15 hectares), or thereabouts, as outlined in Red on the Site Plan.

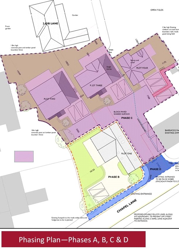
Planning Consent was granted under Application No: 22/00451/FUL on 14th December 2023, with the Planning Consent allowing for ‘erection of three no. dwellings following demolition of existing derelict buildings’. The Planning Consent also allows for the conversion of an existing shippon into one dwelling (Plot One), however this shippon building (Plot One) is not included within the property being marketed and sold.

The proposed development has access directly off Chapel Lane, which will comprise a shared access with the existing Barracks Farmhouse dwelling. The Planning Consent has been approved as four separate phases. The Vendor is retaining Phase B (Plot One), comprising the shippon to be converted into a single detached bungalow.

Phase C comprises the property being marketed, allowing for the erection of three new family dwellings. Phase D comprises the entrance leading onto Chapel Lane and the footpath to the front of Phase B, with the Vendor and future purchaser taking joint responsibility associated with Phase D as appropriate; the purchaser will be responsible for the creation / alterations to the access required onto the highway associated with Phase C and the vendor will be responsible for any work associated with the access and pavement to the front of Phase B.

Phase A relates to the whole site, including the part demolition of the existing Shippon (to be completed prior to sale) and site clearance of the existing derelict buildings.

The current plans provide for three detached family dwellings, providing for the following internal property layouts:

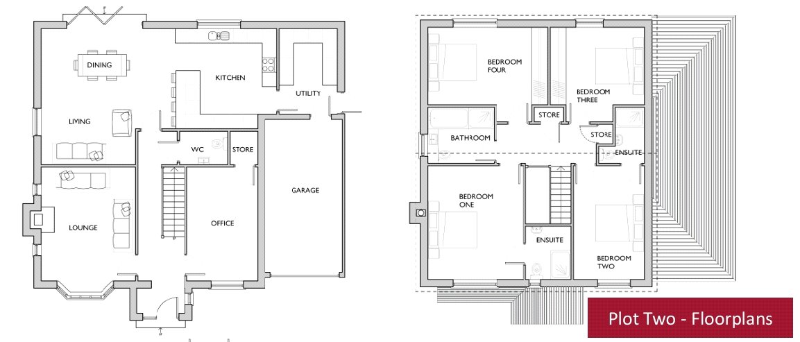
Dwelling One (Plot Two) - 4 bedrooms/224.1 sq. m: Comprises entrance hallway, office, store, downstairs wc, lounge, kitchen/dining/living room, utility and garage to the ground floor. To the first floor are four bedrooms (two with ensuite) and a family bathroom.

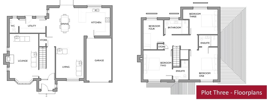
Dwelling Two (Plot Three) - 4 bedroom/184.9 sq. m: Comprises entrance hallway, lounge, utility, downstairs wc, kitchen/dining/living room and garage to the ground floor. To the first floor are four bedrooms (two with ensuite) and a family bathroom.

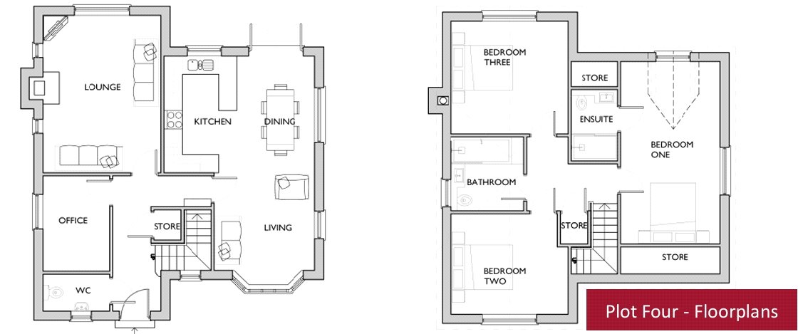
Dwelling Three (Plot Four) - 3 bedroom/147.9 sq. m: Comprises entrance hallway, downstairs wc, office, lounge and kitchen/dining/living room. To the first floor are three bedrooms (one with ensuite) and a family bathroom.

The proposed development is an ideal opportunity to create a select residential development in a much sought after and excellent semi-rural location.

Development sites of this nature are not regularly offered to the market and this a rare opportunity to obtain a substantial site which offers huge scope to a variety of purchasers.

PLEASE REFER TO THE BROCHURE / SALES DETAILS FOR ADDITIONAL INFORMATION.

Read More