Fleetwood Road

Esprick, Preston, Lancashire, PR4 3HJ
5
3
Offers Over £625,000

Description

***OPEN HOME EVENT*** SAT 13TH JUNE – 12PM TO 2PM A highly attractive, welcoming barn conversion set in a large plot extending to 0.34 acres OTA, this is a super family sized home in a highly accessible spot. A great home, ideal for those who are looking for space, and we have heard from the vendors that it is a great house for entertaining! Take a look at the video tour available from the agent.

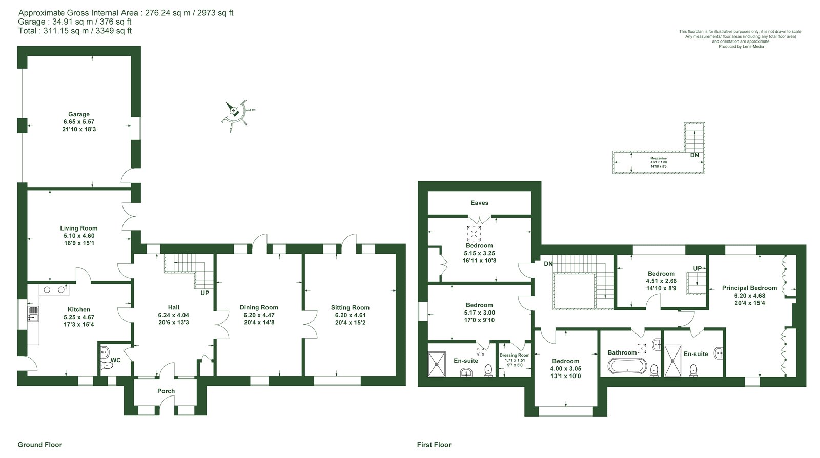
Entered through a large glazed door set within an impressive picture window at the front, setting off the converted barn feel to this home. The front door opens into the entrance vestibule and impressive entrance hall beyond. The entrance hall is a welcoming room , having the benefit of the light from the picture window at the front and a staircase with a part galleried landing above. A WC is found off the entrance hall. Glazed double doors open into a lovely bright dining room which has a glazed door to the rear gardens and a window to the front. Perfect for entertaining the dining room is positioned next to the fabulous lounge space.

The lounge has an open fire set in a stone surround creating a lovely warming focal point to the room. A glazed door is provided to the rear gardens, and a picture window to the front, providing a lovely bright feel.

The kitchen has a range of wall and base units in oak set around a green Aga – traditional in feel, yet so much potential. Adjacent to the kitchen is a further reception room which has glazed doors out the rear gardens . This room as a feature fireplace.

The staircase rises to the first floor where there is a galleried style landing. There are 5 bedrooms in total. The Principal Bedroom is a spacious room and includes a range of fitted wardrobes and an attractive feature fireplace. This room has a super ensuite facility. The second bedroom is a lovely room and includes a walk in wardrobe and also a beautiful ensuite. The family bathroom serves the remaining bedrooms, a roll top bath, with a shower head fitting and a high level WC and a wash basin are found.

There is a double garage at the side of the property which has a personnel door through to the rear gardens.

Perfect for entertaining, a well presented garden at the rear includes a lawned area and a patio. At the front is a gravel parking area, with an expanse of lawn which can all be enjoyed from the summer house.

The property has access over the road at the side from Fleetwood Road. There are a number of users.

Location :

The property in Esprick is secluded and found down a private drive well away from the main road. It is in an ideal location for those who commute being close to the main road and motorway network. Elswick, Great Eccleston and Kirkham are a short drive. Great Eccleston and Kirkham have shops, healthcare providers, public houses and restaurants. There are a range of good schools locally, with Singleton School having been ranked highly in recent league tables. Kirkham has the prestigious Kirkham Grammar School and Carr Hill High School, Hodgson and Baines are found in Poulton and AKS Lytham is located in Lytham St Annes.

Read More