Higher Walton Road

Walton-le-Dale, Preston, Lancashire, PR5 4HS
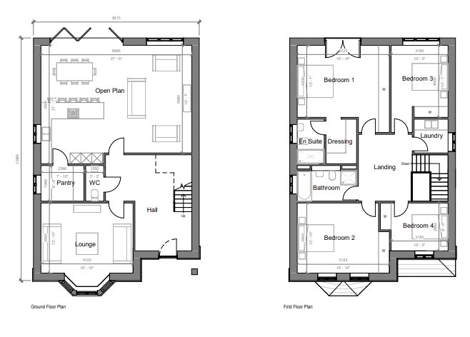
4
2
Asking Price £400,000
No video tour found for this property
Floorplans
View On Map
Video Tour
No video tour found for this property

Description

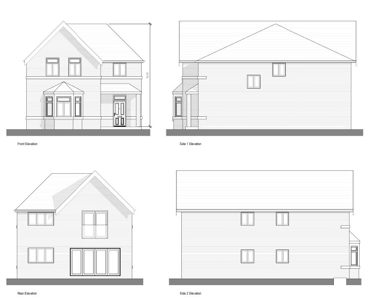
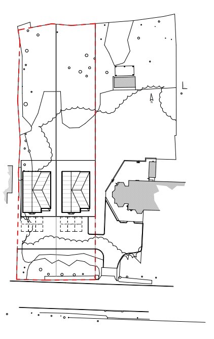
A superb opportunity to purchase a single building plot with full planning consent for the erection of two detached dwellings in a sought after, established residential location. The plot obtained Full Planning Consent under Application Number 07/2025/00794/FUL | Erection of 2 No. dwellinghouses granted on the 9th March 2026 by South Ribble Borough Council.

The site currently comprises a large area of lawn and mature trees, broadly rectangular in shape and currently used as garden for the dwelling houses situated to the east of the plot.

The plot is located off Higher Walton Road and will be accessed via a shared driveway to the front of No. 201a. There are a range of village amenities based in Higher Walton itself, with the property boasting immediate connections to the A6 providing easy access to motorway networks and the wider Central Lancashire area, with the City of Preston being only a short distance away.

Building plots of this nature are not regularly offered to market and this is a rare opportunity to build distinguished properties within a village location.

Read More