Hornby

Lancaster, Lancashire, LA2 8JN
3
3
Guide Price £775,000
No video tour found for this property
Floorplans
View On Map
Video Tour
No video tour found for this property

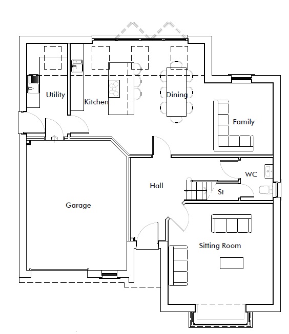
Description

The Frobisher is a beautifully designed home that perfectly balances style, comfort and generous modern living space — ideal for contemporary family life. With an impressive open-plan family/dining kitchen, generous bedroom accommodation including two bedroom suites. Externally the property offers landscaped gardens, generous driveway and integral garaging.

Step into The Frobisher, an exceptional home designed to combine modern open-plan living with thoughtful, practical spaces. From the moment you enter the spacious and welcoming hallway, the quality and careful planning of this beautiful property are immediately clear.

At the front of the home, the stylish sitting room features a striking square bay window, flooding the space with natural light and creating a perfect retreat for relaxing. To the rear, the heart of the home is the impressive open-plan family /dining kitchen, designed for both everyday family life and entertaining.

With bifold doors opening onto the garden, this space seamlessly blends indoor and outdoor living. A great-sized utility room and ground floor WC add convenience, while the integral garage provides additional storage and practicality.

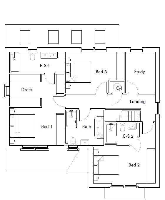
Upstairs, the generous layout continues. Bedroom 1 is a true sanctuary, complete with a walk-in dressing room and a private en-suite. Bedroom 2 also benefits from its own en-suite, ideal for guests or family. A further third bedroom, an additional study, and a luxurious four-piece family bathroom featuring a beautiful freestanding bath complete the first floor.

The Frobisher is a home designed to meet the needs of modern families, offering space, style, and flexibility in equal measure.

Read More