Main Road

Bolton Le Sands, Carnforth, Lancashire, LA5 8EQ
2
2
Guide Price £50,000
No video tour found for this property
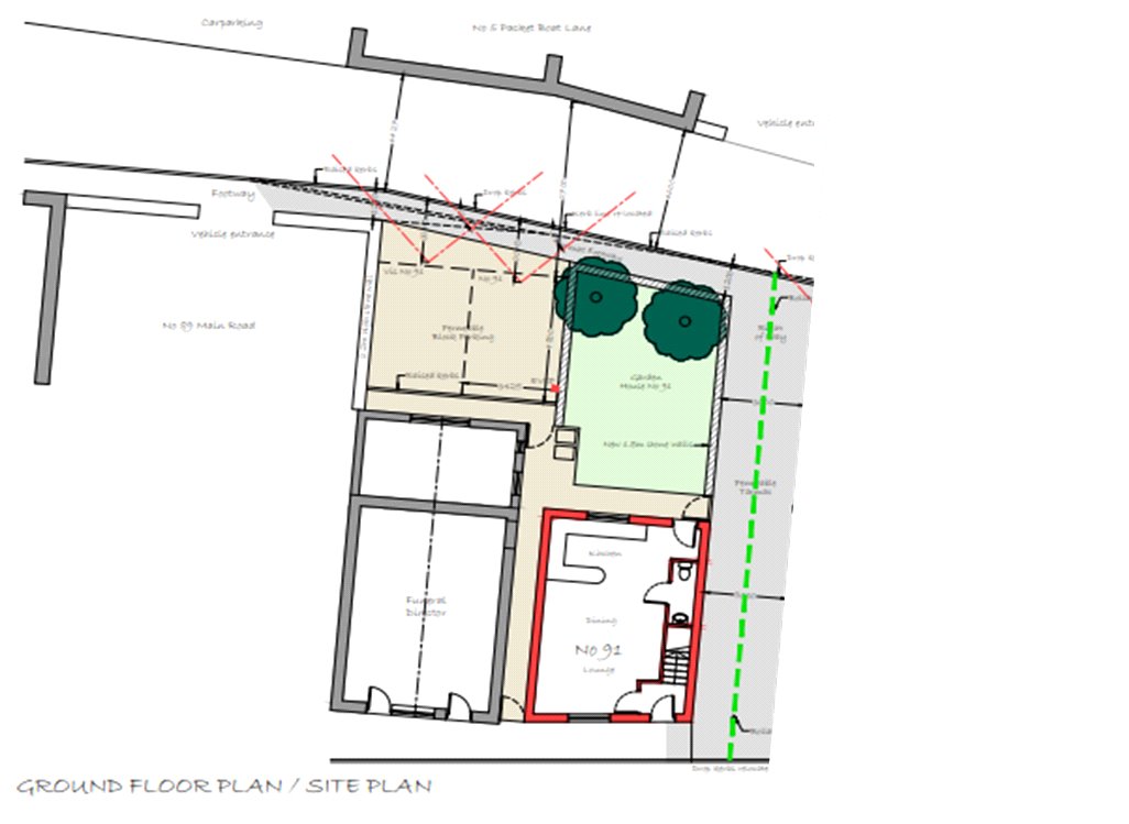
Floorplans
View On Map
Video Tour
No video tour found for this property

Description

This superb residential development plot situated in the heart of Bolton le Sands and offers a plot, ready to go with planning permission in place. This central village plot is a rare find.

Occupying a prominent and accessible position on Main Road, the site offers excellent accessibility to the village amenities and is within walking distance of the beautiful surroundings and coastal position. The villages offers everyday amenities including village shop, butchers, primary school to name a few. The larger market town of Carnforth is a short drive from the property and has excellent transport links with the railway station giving direct access to London Euston, Manchester and Glasgow via the Westcoast main line. Beyond the historic city of Lancaster offers further amenities and additional connection links via the M6 motorway. This unique opportunity is ideal for developers, investors or owner-occupiers.

The site offers an enclosed plot, together with an area of land beyond which provides a right of way. Whilst planning permission is in place, there is scope to alter the plans should a purchaser wish. The current plans provide for a 2-bedroom detached dwelling, together with garden area and parking situated to the rear. The accommodation comprises entrance into lounge / dining / kitchen space, with two bedrooms and a house bathroom to the first floor.

This superb development opportunity is in a highly sought-after setting, with strong demand both for the sales and rental market.

Read More