Moss Side Lane

Stalmine, Poulton-le-Fylde, Lancashire, FY6 0JP
4
1
Offers Over £825,000

Description

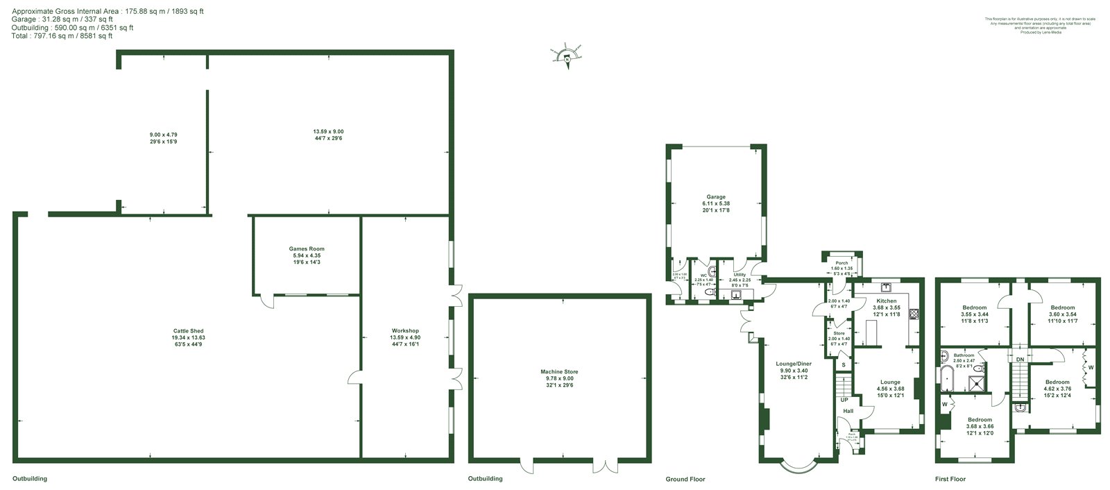
Welcome to Springfield, this highly attractive property has been in the same ownership for some 48 years and has so much to offer. There is a super four bedroom home with scope to alter to suit a buyer, a large range of outbuildings and yard, all set within 5.3 acres ( 2.16 ha) or thereabouts. This would make an ideal purchase for those with equestrian or agricultural interests or those who have alternative use ideas.

The property is positioned along a charming country lane, yet is just a short drive/walk away from the village of Stalmine. This lovely Lancashire village is just a short drive from the popular town of Poulton le Fylde. It is a great location for those who wish to enjoy a more peaceful place to live yet easily accessible to amenities. The village is surrounded by open farmland and sits close to the Wyre Estuary where there is plenty of opportunity for scenic walks, birdwatching and waterside views. For those who enjoy the outdoors, there are countryside and coastal paths for walking and cycling. The country lanes make for great hacking opportunities for those equestrians. The village has a parish church, primary school and a pub. There is good access to the main road and motorway networks and a rail link is found in Poulton. Think connected rural charm, this is it.

The property has 2 driveways off Moss Side Lane, one for the house which runs to the side of the property and one passes the garden to the right and field to the left and opens out to a large yard, with oodles of room to turn and park. From here you can see the range of outbuildings and the well-presented house, setting the tone and feeling of potential that this property offers.

The house is set in attractive and well tended gardens. The part glazed front door opens into the entrance porch, further glazed double doors open to the entrance hall. The hall has doors off to the living kitchen and dining lounge, but also stairs to the first floor.

The living kitchen is likely to be the hub of this super family sized home and has a really welcoming feel. The kitchen units are found at the rear of the room with views out to the attractive patio. The units have granite work surfaces and include a breakfast bar. The integrated appliances include dishwasher, double oven, hob with extractor, and a point for a wine cooler fridge freezer. The living space in this room has views to the front of the property and enjoys a gas fire set in a brick surround giving a cosy feel to the room.

The Dining Lounge is a lovely bright room with a large window and glazed sliding doors to the side, a lovely place to sit and enjoy the view and , along with a further window overlooking the front garden. There is a gas fire with a marble surround giving a super focal point to the room.

The utility room has a range of units, sink and drainer along with a point for the washer and drier. A further door leads to the garage which has electric up and over doors and is home to the large hot water tank that is linked to the solar panels. A car port, a store and wc are also located off the garage, ensuring all practicalities are covered in this area of the house.

The staircase rises to the first floor where there are 4 bedrooms in total. Bedroom 1 has views to the front and a range of fitted wardrobes along with a wash basin set in a unit, bedroom 2 has views to the side and front of the house along with fitted wardrobes, whilst bedrooms 3 and 4 both enjoy views to the rear. The bathroom has a wc, wet room shower, double ended bath, wash basin set in unit and tiled walls along with a heated towel rail.

Spacious secluded patio is found at the rear, shielded from the rest of the yard.

There is a large area of hard standing between the house and the buildings. The buildings were developed over time and include a 3 bay steel frame former cattle shed with lean to and a 4 bay steel frame cattle building with below ground slurry channels

A further detached, 2 bay, steel framed implement shed has double doors at the front and a diesel tank that is located at the rear of the building.

Beyond the yard and buildings is agricultural land which is ideal for grazing. A boundary fence will be put up ahead of the ditch, the vendor will be retaining beyond. The area for sale is shown edged red in the sales particulars. The vendor may look to sell additional land in a separate transaction and by separate negotiation.

Installed on the outbuildings are 18kw of solar panels which generate an annual feed in tariff (FIT) payment in the region of £8,000, and is contracted to run for a further 10 years. There is also a rainwater collection system with filters. This provides water to all outside taps and toilets on the property. The water has been used to feed cattle/ animals in the past.

Read More