Sold STC
Sold STC
Sold STC
Sold STC
Sold STC
Sold STC

The Paddocks

Hest Bank, Lancaster, Lancashire, LA2 6LJ
0
0
Offers in the region of £385,000
No video tour found for this property
Floorplans
View On Map
Video Tour
No video tour found for this property

Description

This development opportunity is rare and offers the chance to acquire a building plot with the benefit of full planning consent in a highly desirable village position with high gross developed values.

Nestled within the coastal village of Hest Bank, near Lancaster, this location is ideally positioned for those seeking excellent access to the M6 motorway, with Junction 34 being just 3 miles away. For those looking to travel further afield, Lancaster railway station is within easy reach, offering direct links to London Euston.

The family market is well served by a selection of highly regarded local primary and secondary schools, alongside a number of respected independent schools in the area. The historic city of Lancaster is just 4 miles away, offering an excellent range of amenities, including a range of independent and high street shops, restaurants, and services.

For those with outdoor interests, the property enjoys proximity to the scenic coastline of Morecambe Bay, with attractive walks and cycle routes close by, while the Lake District National Park can be easily reached and enjoyed all year round.

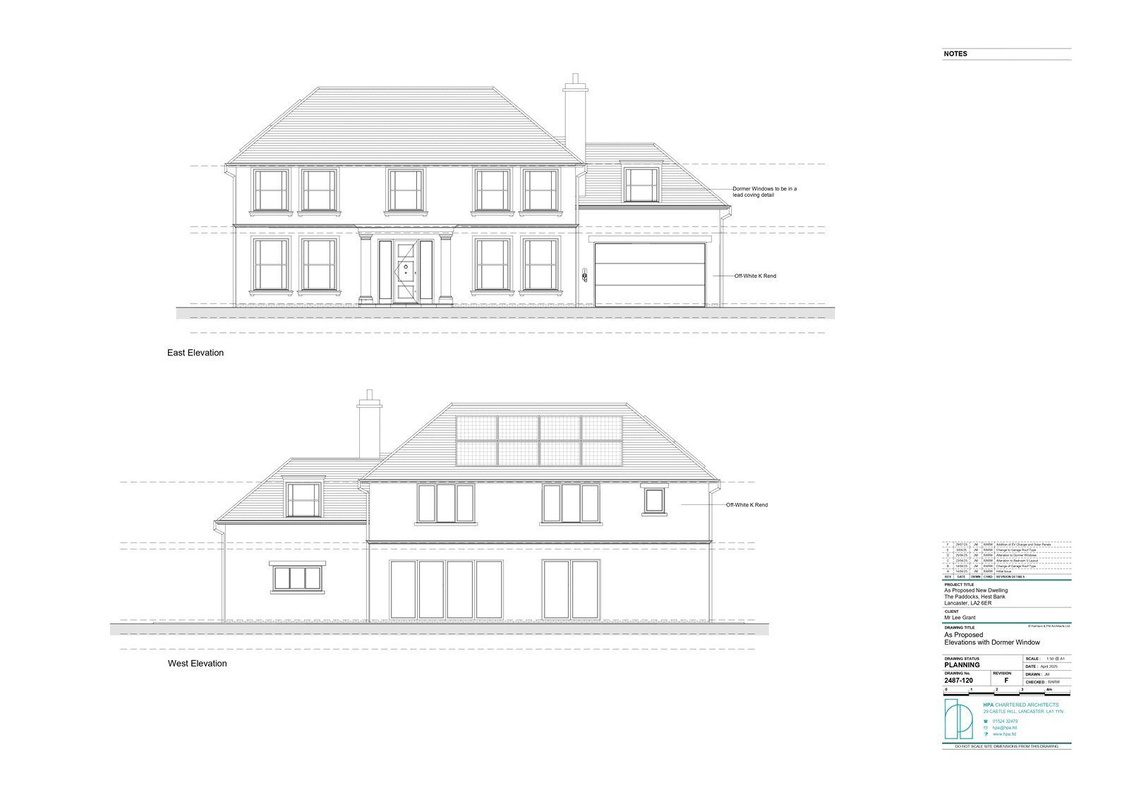
The proposed development provides full planning consent under planning reference 25/00621/FUL. The plot extends to approximately 0.45 acres or thereabouts and has full planning consent for a substantial 5-bedroom residence with a high developed value. The accommodation is set over two floors and offers extensive accommodation extending to approximately 3,200 sq ft with an additional garage and utility area of approximately 500 sqft. The plans have been carefully designed to create an excellent living space with the ground floor offering an open kitchen living space with an outlook to the rear, separate office space and WC facilities with access to the utility and garage space. The first floor provides 5 bedrooms and a house bathroom, 3 of the bedrooms are designed as bedroom suites with the principle bedroom spanning full width of the property.

Externally, the plot provides a generous space with ample space for parking and an integral garage space. Set within a quiet residential area of just three properties the position is exclusive to the area, well hidden and offers great privacy. The other two properties have been completed and show the high end values which can be achieved.

Read More