Yealand Road

Yealand Conyers, Carnforth, Lancashire, LA5 9SJ
3
1
Offers Over £450,000
No video tour found for this property
Floorplans
View On Map
Video Tour
No video tour found for this property

Description

Characterful home with excellent scope for upgrading in highly sought after village location. Set within a generous plot of approximately 0.25 acres the property benefits from mature gardens, an orchard area, ample parking, and garaging -providing plenty of space and scope for a variety of uses. A rare opportunity to create your dream home in a beautiful setting.

The peaceful and sought-after village location is a great setting for the property, offering stunning countryside surroundings while being well connected to the local amenities and transport links. The home itself offers original features and flexible accommodation, all situated in a good-sized plot, together with garaging and a former piggery building. Offering an excellent family home with room to grow, a characterful project to restore, or a beautiful home, this is an ideal home for many.

The setting is within the village of Yealand Conyers, which is a tranquil and picturesque village within the Arnside and Silverdale Protected Landscape. Despite its peaceful rural position, the location offers excellent connectivity and accessibility to the nearby A6, M6 and rail links via Carnforth railway station. The historic city of Lancaster and the town of Kendal are just a short drive away.

For families, the area is well served by a selection of local schools, including a primary school within the village itself. For older children, the location sits within the catchment for highly regarded secondary schools including Lancaster Grammar Schools, Queen Elizabeth School in Kirkby Lonsdale and a choice of private schooling.

Despite its size, the village has a thriving community and welcoming atmosphere, which is supported by the village pub, the New Inn, which is just a short stroll away.

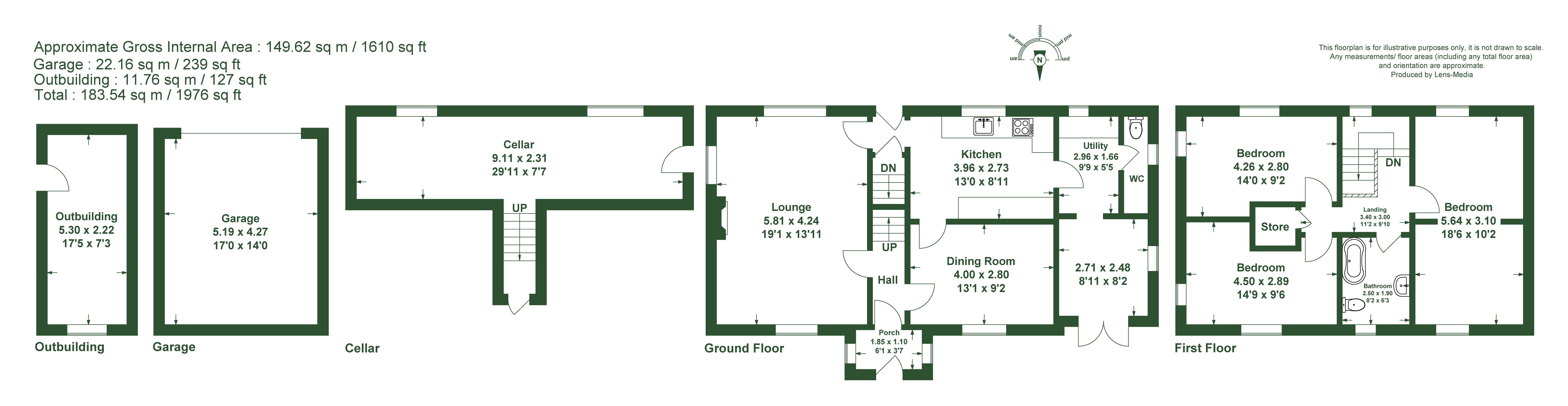
Set in a slightly elevated position, Manor Farm House can be seen from the approach. Behind its traditional frontage, is flexible accommodation which offers excellent scope and potential to be upgraded and modernised, as well as extended (subject to planning).

Entering through the stone porchway, this leads into an inner hall giving excellent flow to the ground floor accommodation. The lounge spans the full width of the property and has outlooks to the front, side and rear of the property, enjoying views over gardens and open countryside. The living room is set around a central gas stove, making this a cosy space. The dining room is situated at the front of the property, enjoys views to the front and is well connected to the kitchen area, situated at the rear. The kitchen has wall and base units to two walls, as well as points for dishwasher, gas hob and integral oven. Off the kitchen is a practical utility area and WC and shower facilities, which are of generous proportions.

From the kitchen, there are steps leading down to the cellar, which is a sizable space offering ample storage which can be accessed internally and from the side external door.

To the first floor there are three generous bedrooms, all being double bedrooms and enjoying dual aspect. The bedrooms share the house bathroom.

Outside, the gardens and grounds wrap around the property and offer established gardens made up of lawns, mature shrubbery, seating areas and a flagged patio. In all the grounds extend to 0.25 acres or thereabouts. The outdoor space is perfect for gardeners or those who simply want to enjoy the outdoors. The raised beds are ideal for those with green fingered interests, looking to be self-sufficient.

Set at the front of the property is a detached garage building providing parking or storage, with further parking beyond for multiple vehicles. In one corner of the garden is a unique and characterful former piggery outbuilding, which could be transformed into a studio, home office or garden room.

This quintessentially English village located against a stunning backdrop, is the perfect place to call home. This conveniently located position is ideal for a range of buyers. With superb scope for improvement and versatile accommodation, there is plenty on offer.

Read More