Hornby

Lancaster, Lancashire, LA2 8JN
4
4
Guide Price £1,075,000
No video tour found for this property
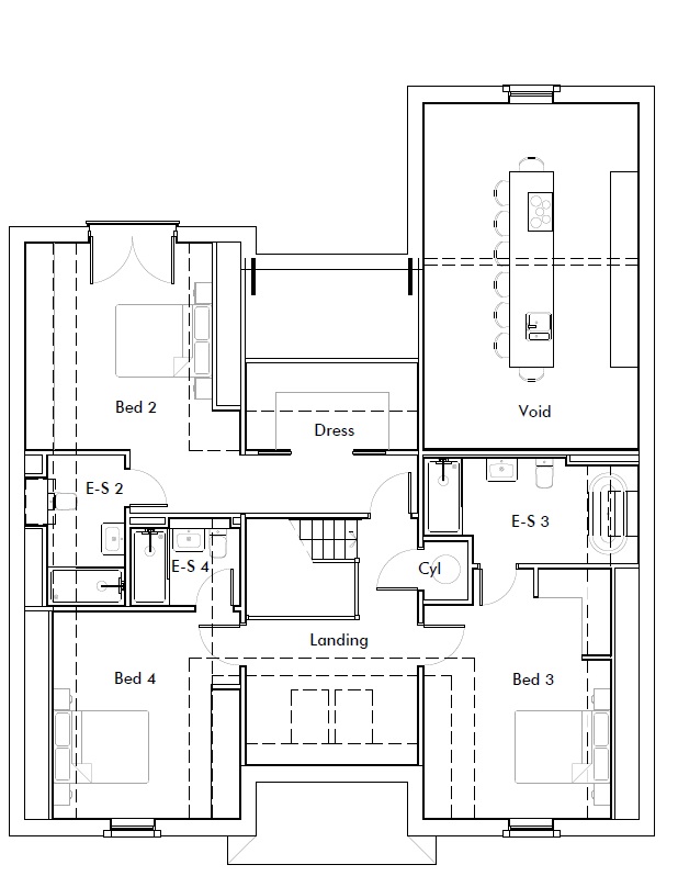
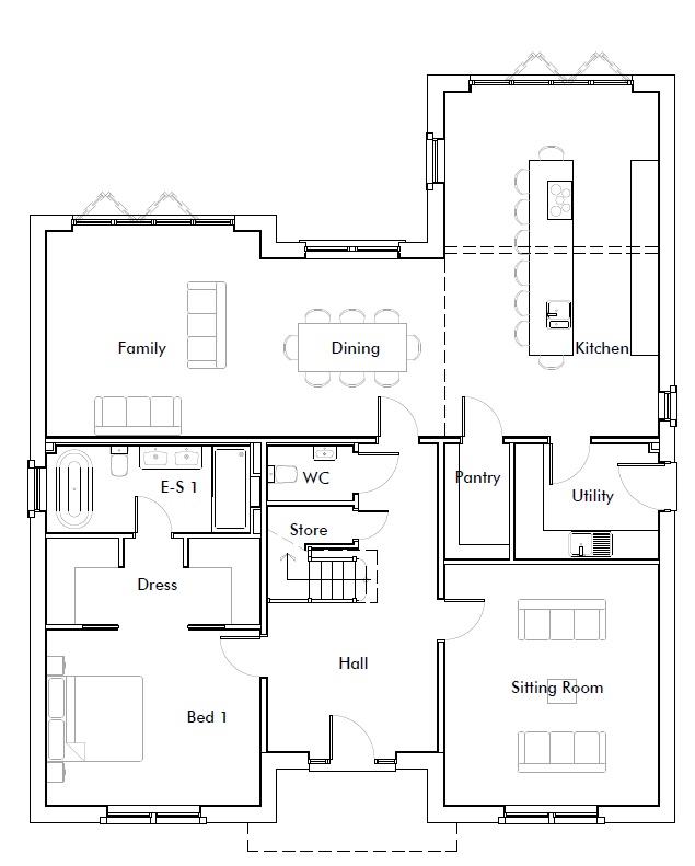
Floorplans
View On Map
Video Tour
No video tour found for this property

Description

A stunning four-bedroom luxury new build, perfectly positioned in the sought-after village of Hornby. This beautifully designed home combines contemporary elegance with high-quality finishes throughout, offering spacious and versatile accommodation ideal for modern family living. Externally, the property benefits from landscaped gardens, ample driveway parking and a detached double garage. Located in a rural village setting the location offers excellent connectivity throughout the Lune Valley and beyond.

The Bingham offers exceptional design and craftsmanship, seamlessly blending contemporary luxury with timeless architectural charm. Its striking frontage features impressive double gables with stone corbel detailing, while the sweeping porch canopy creates a welcoming entrance that beautifully echoes the traditional & characterful architecture of the Lune Valley.

Step inside to discover a breathtaking double-height vaulted kitchen, complete with feature timber beams and dual sets of bi-fold doors that open directly onto the rear patio and garden – perfect for effortless indoor-outdoor living. The ground floor has been thoughtfully designed for both style and practicality, boasting a grand entrance hall with galleried landing, a spacious sitting room, generous storage including cloaks and pantry, and an expansive family/dining kitchen that forms the heart of the home.

A rare and highly desirable feature is the luxurious ground-floor Master Suite, ideal for those seeking convenient single-storey living. This impressive retreat includes a walk-in dressing room and an indulgent en-suite with freestanding bath, double vanity unit, and an expansive walk-in shower.

Upstairs, three further large double bedrooms each enjoy their own private en-suite, with Bedroom 2 also benefiting from a generous walk-in dressing room and charming Juliet balcony. The Bingham perfectly combines grand design with everyday comfort – an outstanding home for modern family living.

Read More